Не упусти свой шанс! Последние акции от застройщиков  ▼

Продается 3-комнатная квартира, Ленина просп., 32А

11 900 000 Р

Балашиха г. (Балашиха гор. округ)

Ленина просп.32А

Дата публикации: 8 июня 2025

Дата обновления: 26 октября 2025

Телефон: 
Показать телефон

+7 (499) 372-92-13

Агентство:  МИЭЛЬ

Название: ЖК "Акварели"

От застройщика: 0 квартир в продаже

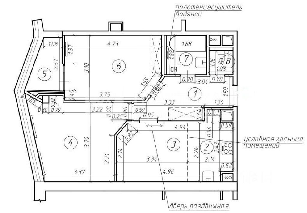
Этаж: 4 / 14

Общая: 58,8 м2

Жилая: 29,4 м2

Кухня: 6,1 м2

Комнаты: не указано

Балкон/лоджия: не указано

Лифт: есть лифт

Окна: окна во двор

Санузел: раздельный

Мусоропровод: не указано

Состояние квартиры: евроремонт

Тип дома: монолитный

Год постройки: 2015

Территория: огороженная

Парковка: не указано

Статус сделки: продажа

Сделка: альтернатива

Собственность: не указано

Основание права собственности: не указано

Описание

Код объекта: 1632084. Вашему вниманию предлагается отличная трёхкомнатная квартира в городе Балашиха, расположенная на проспекте Ленина. Один собственник. Этот вариант идеально подойдёт как для семей с детьми, так и для пар без детей или пожилых людей. Обмен на двух или трехкомнатную квартиру до 15 минут пешком до метро Москва также рассматривается.Квартира находится в современном монолитном доме 2015 года постройки. Покупалась у застройщика. Квартира на четвёртом этаже из четырнадцати, окна выходят во двор. Общая площадь квартиры составляет 58,8 квадратных метров, жилая 29,4 квадратных метров, площадь кухни 6,1 квадратных метра. Кухня совмещена с гостиной комнатой 9,0 квадратных метра. Высота потолков 2,85 метра. Две изолированные комнаты, раздельный санузел и просторная лоджия создают комфорт и уют.Квартира теплая, регулируемые радиаторы от застройщика. Счетчики воды и электроэнергии. Установлена современная сплит-система (кондиционер), рассчитанная на охлаждение 60 квадратных метра, а также система HDMI -мультимедийный интерфейс высокой четкости, передающий по одному проводу изображение и звук высоком разрешении по всей квартире. Квартира с евроремонтом, готова к заселению. Имеется вся необходимая мебель для проживания. В доме есть подземный паркинг, а территория комплекса огорожена, что обеспечивает безопасность и удобство. На этаже 6 квартир и проведено видео наблюдение. Соседи все дружелюбные и приветливые.Одновременно с квартирой возможно приобретение семейного машино-места на подземной парковке (-2 этаж, рядом с лифтом).Расположение квартиры одно из её главных преимуществ. Близость к основным транспортным магистралям и станциям метро делает передвижение по городу быстрым и удобным.В доме есть продуктовые магазины, поликлиники, ПВЗ, аптеки, ветеринарная клиника, детские сады, клубы, спортивные и фитнес клубы, салоны красоты, кафе и кофейни. В радиусе 1000 метров от дома также находятся магазины, школы, детские сады, и спортивные клубы. В 10 минутах ходьбы крупнейший парк Подмосковья "Пехорка".Не упустите возможность стать владельцем этой уютной квартиры! Позвоните нам прямо сейчас, чтобы узнать больше и записаться на просмотр.Мы гарантируем безопасную сделку и юридическую поддержку нашим Клиентам. Поможем одобрить ипотеку с сниженной ставкой.

Квартира на карте

ПанорамыКарта
Спецпредложения
Добавить объявление