Не упусти свой шанс! Последние акции от застройщиков  ▼

Продается 1-комнатная квартира, Ленина просп., 24

5 900 000 Р

Балашиха г. (Балашиха гор. округ)

Ленина просп.24

Дата публикации: 17 апреля 2026

Дата обновления: 17 апреля 2026

Телефон: 
Показать телефон

+7 (499) 372-92-13

Агентство:  МИЭЛЬ

Название: ЖК "Акварели"

От застройщика: 0 квартир в продаже

Этаж: 4 / 14

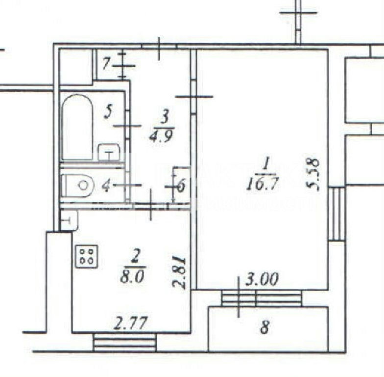
Общая: 37,1 м2

Жилая: 16,7 м2

Кухня: 8 м2

Комнаты: не указано

Балкон/лоджия: балкон

Лифт: есть лифт

Окна: окна во двор

Санузел: раздельный

Мусоропровод: не указано

Состояние квартиры: требуется ремонт

Тип дома: кирпичный

Год постройки: 1982

Территория: не указано

Парковка: не указано

Статус сделки: продажа

Сделка: прямая продажа

Собственность: не указано

Основание права собственности: не указано

Описание

Код объекта: 2136197.Уникальное предложение! Просторная однокомнатная квартира ,которую можно сделать под свои желания за 5 .900. 000Квартира отлично подойдёт как для вашего проживания, так и для инвестиции: сдача в аренду. Описание квартиры: *Общая площадь - 37.1кв.м.*Жилая площадь - 16.7кв.м.*Кухня- 8 кв.м.*Сан узел - раздельный *Высота потолка 2.7 м*Этаж -4*Год постройки дома - 1982 *Мебель: В квартире остается вся мебель .Если мебель не нужна ,по договоренности можем убрать . Дом и двор: *Квартира находится на комфортном 4 этаже* Соседи, тихие, спокойные.*Шумоизоляция отличная.*Лифт грузовой -1*Лифт пассажирский -1*Наземная парковка Инфраструктура рядом: Рядом находятся Ледовый дворец имени Ю. Е. Ляпкина, Фитнес центры , Торговые центры , школы и детские сады, Парк Пехра занявший первое место по итогам рейтингования парков культуры и отдыха муниципальных образований Московской области , ж.д станция Балашиха . Транспортная доступность: Рядом остановки общественного транспорта, лёгкий доступ к основным магистралям и быстрый путь до центра Москвы. Условия продажи: *В собственности более 5 лет, полная стоимость в ДКП.*Подходит для ипотеки*1 взрослый собственник*Обременений нет Работать с МИЭЛЬ выгодно: *Квартира будет продаваться с юридическим сопровождением, проверкой самой недвижимости и собственника.*По результатам будет выдан письменный правовой сертификат с отчетам по 10-15 пунктам проверки.*Так же покупатель получает пакет бонусов со скидками от партнеров компании на товары для обустройства вашей новой жилой площади. Приобретая недвижимость с МИЭЛЬ, вы приобретаете спокойствие за свое будущее.*по желанию клиента возможно страхование титула.Просмотр квартиры по предварительной договоренности.

Квартира на карте

ПанорамыКарта
Спецпредложения
Добавить объявление